по Ульяновске
от производителей
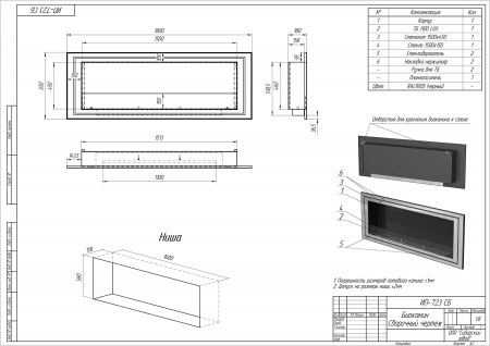
Встраиваемый Биокамин Saturn 1800 (SappFire)
Биокамин Saturn 1800 SappFire – это то, что вам нужно! В отличии от своего аналога имеет толстостенную нержавеющую сталь, линию огня на 200 мм длиннее чем у аналогичных моделей. Эргономичность и увеличенный топливный бак обеспечивает непрерывную работу в течение 5-7 часов – все это включено в этот совершенный прибор. Данная модель имеет улучшенную эргономичность и удлиненную единую линию огня. Опционально можно поставить жаростойкое стекло в передней части (10, 12, 15 см в высоту) и тонированное жаростойкое стекло на заднюю стенку очага. С ним ни домашние животные, ни дети не смогут залезть в огонь и обжечься.Биокамин Saturn 1800 SappFire – это живое пламя в вашем доме. Вот увидите, около очага обязательно будут собираться домочадцы и обсуждать прошедший день. Следует отметить, что данное изобретение имеет все преимущества, присущие стационарным каминам, при этом полностью лишено их недостатков. Сегодня, домашний очаг – это далеко не единственная прерогатива загородных домов. Биокамин и его живое пламя можно теперь увидеть в любой квартире многоэтажного дома. Долговечный, надежный, безопасный биокамин прост в установке (например, встроить в стену).
Габариты
Технические
Для покупки товара в нашем интернет-магазине выберите понравившийся товар и добавьте его в корзину. Далее перейдите в Корзину и нажмите на «Оформить заказ» или «Быстрый заказ».
Когда оформляете быстрый заказ, напишите ФИО, телефон и e-mail. Вам перезвонит менеджер и уточнит условия заказа. По результатам разговора вам придет подтверждение оформления товара на почту или через СМС. Теперь останется только ждать доставки и радоваться новой покупке.
Оформление заказа в стандартном режиме выглядит следующим образом. Заполняете полностью форму по последовательным этапам: адрес, способ доставки, оплаты, данные о себе. Советуем в комментарии к заказу написать информацию, которая поможет курьеру вас найти. Нажмите кнопку «Оформить заказ».
Оплачивайте покупки удобным способом. В интернет-магазине доступно 3 варианта оплаты:
- Наличные при самовывозе или доставке курьером. Специалист свяжется с вами в день доставки, чтобы уточнить время и заранее подготовить сдачу с любой купюры. Вы подписываете товаросопроводительные документы, вносите денежные средства, получаете товар и чек.
- Безналичный расчет при самовывозе или оформлении в интернет-магазине: карты Visa и MasterCard. Чтобы оплатить покупку, система перенаправит вас на сервер системы ASSIST. Здесь нужно ввести номер карты, срок действия и имя держателя.
- Электронные системы при онлайн-заказе: PayPal, WebMoney и Яндекс.Деньги. Для совершения покупки система перенаправит вас на страницу платежного сервиса. Здесь необходимо заполнить форму по инструкции.
Экономьте время на получении заказа. В интернет-магазине доступно 3 варианта доставки:
- Курьерская доставка работает с 9.00 до 19.00. Когда товар поступит на склад, курьерская служба свяжется для уточнения деталей. Специалист предложит выбрать удобное время доставки и уточнит адрес. Осмотрите упаковку на целостность и соответствие указанной комплектации.
- Самовывоз из магазина или склада. Когда заказ поступит на склад, Вам придет уведомление. Мы свяжемся с Вами, уточним время в которое можете приехать.
- Транспортной компанией. Доставим товар в любой город до двери. Заказ можно оплатить при получении.
Самовывоз - 1-2 дня
Доставка курьером - 2-3 дня
Ростов-на-Дону:
Самовывоз - 3-4 дня
Доставка курьером - 4-5 дней
Самовывоз - 4-5 дней
Доставка курьером - 6-7 дней
Воронеж:
Самовывоз - 2 дня
Доставка курьером - 2-3 дня
Самовывоз - 6-7 дней
Доставка курьером -8-9дней
Москва:
Самовывоз - Сегодня
Доставка курьером - 1-2 дня








